Gewerbefläche auf 880 m²

Das zum Verkauf stehende Objekt befindet sich in der beliebten Nordstadt von Hameln, einem lebendigen Stadtteil mit einer sehr guten Infrastruktur. Die Entfernung zum Stadtkern beträgt nur etwa 1 bis 2 Kilometer, was kurze Wege zu allen wichtigen Einrichtungen der Stadt ermöglicht. Darüber hinaus ist auch die Entfernung zur Landeshauptstadt Hannover mit ca. 50 Kilometern sehr gering und somit auch für Pendler attraktiv. In unmittelbarer Umgebung des Objekts finden Sie alle Geschäfte des täglichen Bedarfs, die Sie benötigen. Supermärkte, Bäckereien, Apotheken und weitere Einrichtungen sind in wenigen Gehminuten erreichbar, was ein hohes Maß an Komfort und Bequemlichkeit bietet. Auch für Familien mit Kindern ist die Lage des Objekts ideal, da Schulen und Kindergärten in der näheren Umgebung vorhanden sind. Insgesamt bietet die Nordstadt von Hameln eine perfekte Kombination aus urbanem Lebensstil und ruhiger Wohnlage. Mit der guten Anbindung an Hannover und der umfassenden Infrastruktur vor Ort ist die Lage des Objekts äußerst attraktiv und bietet eine hervorragende Grundlage für eine Gewerbefläche.

 

31787 Hameln

Objekt-Nr.
AFVKSP
Objekttyp: Gewerbeeinheit
Vermietbare Fläche: 880 m²
Objektzustand: gepflegt

Kaufpreis: 600.000 €

Wir sind persönlich für Sie da! Fragen zum Angebot, Besichtigungen, Exposé, ...
  • Beschreibung

    Das Gewerbeobjekt, welches sich in der Hamelner Nordstadt befindet, verfügt aufgrund der historischen Fassade und der Anordnung im Ensemble über einen besonderen Charme. Es besteht viel Potential hier eine individuelle Gewerbefläche zu gestalten. Die Fläche von 880 m² bietet dank der tragenden Säulen eine freie Einteilung der Räumlichkeiten, je nach Bedarf. Es ist eine Aufteilung in große, offene Büroräume oder aber auch eine Verkaufsfläche denkbar. Alternativ können viele kleinere Räume für eine gegliederte Nutzung angelegt werden. Aktuell sind die Fensterflächen in der Außenfassade verschlossen. Eine Öffnung der Fenster in den ursprünglichen vorgesehenen Bereichen sollte bei einer Umnutzung kein Problem sein, um somit für eine Tagelichtausleuchtung der Räumlichkeiten zu sorgen. Die Gewerbefläche ist aktuell direkt und ohne Stufen barrierefrei von dem großen Parkplatz zugänglich. Die zur Verfügung stehenden Parkplätze sind optional und können je nach Bedarf erworben werden. Es handelt sich dabei um insgesamt 30-35 hochwertig gepflasterte Stellplätze. Die Außenfläche ist bereits angelegt und verfügt über einen alten Baumbestand und Grünflächen zwischen den Parkflächen. Die zukünftige Nutzung kann vielseitig gestaltet werden, beispielsweise als Verkaufsfläche, Bürofläche oder Praxisfläche. Kommen Sie gerne bezüglich möglicher Nutzungen oder Konzepte auf uns zu, wir unterstützen Sie gerne in der Planung und Entwicklung Ihrer Ideen und prüfen die Verwendbarkeit der Fläche für Ihre Zwecke und Bedürfnisse.

  • Daten & Fakten

    Einheit AFVKSP
    Objekttyp Gewerbeeinheit
    Kaufpreis 600.000 €
    Vermietbare Fläche ca. 880 m²
    Käuferprovision 4,76 %
    Objektzustand gepflegt
    Grundstücksfläche ca. 880 m²
    Baujahr ca. 1920
    Gesamtfläche ca. 880 m²
    Verfügbar ab nach Absprache
    Anzahl Parkplätze 45
    Stellplatztyp Außenstellplatz
    Bodenbelag Fliesen
    Gewerbefläche ca. 880 m²
    Barrierefrei
    Denkmalschutzobjekt
    Energieausweis wird nicht benötigt
    Translation missing: de.simple_form.labels.defaults.certificate_status NOT_ISSUED
    Preis/m² 681 €
    Gewerbeeinheiten
    Stellplatztyp Außenstellplatz
    Translation missing: de.simple_form.labels.defaults.property_exempt
  • Ausstattung

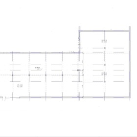
  • Grundrisse

  • Galerie

Ihr Ansprechpartner

Fragen zum Objekt
Vielen Dank für Ihre Anfrage.
Wir werden uns in den nächsten 24 Stunden bei Ihnen melden.

Hinweis: Hiermit setzen wir Sie davon in Kenntnis, dass bei Abschluss eines Kaufvertrages eine Vermittlungsprovision berechnet wird. Diese wird beim Verkauf der Immobilie dem Käufer in Rechnung gestellt. Die Maklercourtage beträgt für den Käufer 4,0 % zzgl. MwSt. des Kaufpreises.

Hinweis: Hiermit setzen wir Sie davon in Kenntnis, dass bei Abschluss eines Kaufvertrages eine Vermittlungsprovision berechnet wird. Diese wird beim Verkauf der Immobilie dem Käufer in Rechnung gestellt. Die Maklercourtage beträgt für den Käufer 4,0 % zzgl. MwSt. des Kaufpreises.